Talking Shop with Omar Gandhi
Today is a special episode because we are sitting down with my very close and personal friend, even though we have never actually met, Canadian architectural rock star Omar Gandhi.
This is the first in a series of posts we are rolling out for the 2020 podcast season titled “Talking Shop with.” We anticipate doing around four of these specialty episodes this year, and we decided to come out the gate strong with our first guest: Canadian architect and emerging voice in the architectural community–as well as my friend–Omar Gandhi.
Before we get into all the pretty photography, drawings and models, here is a professional bio from Omar that should help you understand who we are talking with today.
Omar Gandhi is a Canadian architect currently practicing and residing in both Halifax, Nova Scotia and Toronto, Ontario.
After studying in the Regional Arts program at Mayfield Secondary School (Caledon) and then the inaugural Architectural Studies Program at the University of Toronto Omar moved to Halifax, Nova Scotia where he received his Master’s degree in 2005 at Dalhousie University. After graduation, Omar worked for Kuwabara Payne McKenna Blumberg Architects, Young + Wright Architects, and finally MacKay-Lyons Sweetapple Architects upon his return to Halifax. Gandhi started his own design studio in 2010 and became a registered architectural practice in 2012.
Omar is the recipient of the 2014 Canada Council for the Arts Professional Prix de Rome and was listed in Wallpaper* Magazine’s 2014 Architects Directory – their list of the top 20 Young Architects in the World. Omar was named one of the Architectural League of New York’s ‘Emerging Voices’ of 2016, one of Monocle Magazine’s 20 most influential Canadians, and was named one of Architectural Record Magazine’s Design Vanguard for 2018. Most recently the studio was the recipient of the 2018 Governor General’s Medal in Architecture for the cabin at Rabbit Snare Gorge – Canada’s highest honor for built projects. Omar was appointed as the Louis I. Kahn Visiting Assistant Professor in Architectural Design at the Yale School of Architecture for the Fall semester of the 2018-19 academic year.
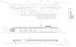
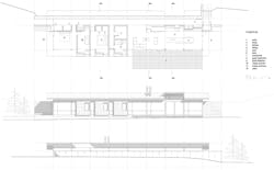
Just to help you understand the context and talent of who we are speaking with today on the podcast, we decided to isolate a single project and put it on display so you could see the finished product, the rigor associated with the floor plans, and the creative process which includes model-making as well a hand-drawn concept sketch.
The project we are focusing on today is The Lookout at Broad Cove Marsh located in Inverness, Nova Scotia. This is a beautiful project and we promised Omar that we would recognize the individuals who contributed to its creation.
Architect: Omar Gandhi, Jeff Shaw, Peter Kolodziej, Amber Kilborn
Engineer: Andrea Doncaster Engineering
Structural model: Ben Angus
Contractor: Joseph ‘MacGee’ MacFarlane
Photography: Doublespace Photography
Okay, time for the hypothetical question – which is really the only reason why the first part of this podcast exists … it’s all just leading up to this moment. As it turns out, Omar is familiar with how this works except I had to clarify that either Omar or Andrew could answer first, but no matter what order, I will go last so I can change the rules and make fun of everybody’s answers. Andrew is very familiar with how this works! [46:00 mark]
"Would you rather only age from the neck up or the neck down?"
This turned out to be a better question that I thought it was going to be and while Omar was a good sport about it, I’m not entirely convinced that he enjoys these sorts of questions as much as Andrew and I do … or maybe it’s just me that enjoys these questions.
I’d like to thank Omar Gandhi for making the time to come onto the podcast despite the fact he wasn’t feeling well. He had a lot of interesting things to say, several of which have become heavily contested talking points in my new office. It is always refreshing to speak with someone who allows such transparency in their creative process and Omar was a completely open book during our conversation.
I think many people will find how he started his firm, and how he went about securing commissions, not only interesting but reassuring and somewhat comforting. It may be cliche to say that hard work is its own reward but in this case, hard work was integral into how Omar Gandhi moved from working on deck additions in his attic to becoming one of the most recognized young architects in the world in only ten years.












