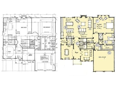
The housing market has changed so drastically in the last few years that it can be difficult for builders to stay current with their plan portfolio. Most every builder I work with has old plans they are offering that either need to be reworked or let go. Consumers want drama, open spaces, efficiency of plans, and affordability. The question becomes, when to keep an old workhorse? The answer is simple. If the plan can be brought up to date without changing the foundation perimeter, or the bulk of the elevation massing, it is probably a good candidate for a rework. Today we will examine such a case.
Let’s take a closer look:
About the Author

Todd Hallett
Todd Hallett, AIA, president of TK Design & Associates has been designing award-winning homes for more than 20 years. Equipped with vast building experience and fueled by his love for architecture, Todd specializes in Lean Design and works, alongside Scott Sedam of TrueNorth Development, in the trenches with builders, suppliers, and trade contractors. Todd welcomes your feedback at [email protected] or 248.446.1960.

