Renovating your House
Leaving your mark on the place where you live is built into the DNA of most architects and designers. This can manifest itself in many different ways, but for many of us, working on the place where we live is the most obvious choice. Today we are talking about "Renovating your House" – the good, the bad, and (hopefully not) the ugly.
Talking about the process surrounding a home renovation – something that Andrew and I are both currently going through – is an almost endless topic of possible conversations. Instead of this simply being a matter us sharing construction war stories and complaining, we obviously would like this episode to be of some value so in addition to those war stories, we are going to discuss budgets, setting priorities, handling conflicts with your contractor, and a handful of other items that you might expect should you decide to renovate your own home.
Architects working on their own homes is the worst jump to 4:36
As a living and breathing architect, I am here to tell you that designing and preparing drawings for work on your own house is a drag. I can guarantee you that this isn’t news to most architects and it’s a topic that I have covered here on Life of an Architect before. Despite what I know and the value that I advocate with everyu soapbox I can climb onto, I just don’t have it in me when the time comes to prepare drawings on my own house.
Ugh.
What we know versus what we might be able to afford is seemingly always out of whack and there is constant effort and consideration to work through the scope of work I am doing versus my time and energy to prepare drawings to completely bid out and get estimates on my project. Assuming that there is some intelligence behind this, it’s safe to assume that I have a reasonable idea of how much things cost as I am putting together my scope of work. Once I look at what I want done and try to marry that up with my budget, priorities come into play as well as the quality of work I expect that I need to be done. If I have 10 things I want to get done, and replacing all my cabinets is one of the items I want to tackle, that might take up my entire budget alone. I could go to a different sort of contractor and maybe with this person I can get my cabinets and 2 or 3 other things done off my list … and you can extend this logic out a bit for yourself.
In the end, I decided to go with a good contractor, but not a great one, and I decided to tackle 10 things on my list instead of 3. This decision demands that I constantly remind myself that the quality of the work is not perfection – but appropriate to the fee being charged. (I have to remind myself of this several times a day).
The Scope of Work jump to 10:22
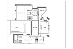
So just how much work am I taking on? Well, it’s still quite a bit and it will still make a dramatic difference. If you look at the list above, you can quickly see for yourself that every room is being impacted and that few of the tasks we are taking on are truly significant in their scope. The biggest tasks we are taking are different depending on whether or not you are talking about the scope, or impact. That’s a major consideration of how we selected the areas we chose to tackle. We did not add any square feet to this project and with the cost of this entire project, I will need to sell my house for about $21 more per square foot than what I bought it for … and I feel confident that I can make that happen (technically, it’s already past that amount without the addition but I want the sales price to pay me back for this investment).
Determining a Budget jump to 19:08
So how do you determine your budget? There are a lot of ways really but the most important consideration is that you should determine how much money you have to spend before determining what work you want to tackle. There are also considerations that could be based on how long you live at the house and if you are looking at your house as an investment – which most financial advisors would tell you that you shouldn’t do …
I don’t listen to those people because I think they are speaking generically and I have about 100 things I consider when I buy my houses (this is house #7 for me so I think I have some skins on the wall in this area – we have NEVER lost money when we’ve sold a house. Even though I save money and contribute to my 401K religiously, I’ve seen far greater returns on the sale of my houses than I have from these other financial routes). I feel like it’s a little braggy saying that but I would hope as an architect I know a little something about this process that other people might not.
Concurrently with establishing our budget, we both came up with a list of our own priorities and then sat down together and compared lists. Maybe it shouldn’t be a huge surprise but 90% of our list matched the other.
Other considerations that you could consider are:
• Resale value – if you do not think this will be your forever home, or at least one that you might be in for at least 10-15 years, you should probably consider the scope you tackle with thoughts towards what others might think when walking your house when they are thinking of buying your home.
• Enjoyment of the house while you actually are living there – do not underestimate this consideration.
Setting priorities based on that budget jump to 29:42
We can’t afford to do everything we like so we went with a strategy to cover as much ground as possible while voiding the really large ticket items (like new cabinets, exterior paving, adding square footage. In the end, for the smaller ticket items, we focused on painting, replacing trim, tile flooring, and lighting (basically replaced existing locations). For the larger items, it was countertops, new plumbing fixtures, and rebuilding the fireplace and we choose all of these selections because they have high-touch and high-visibility in our home.
The only serious regret I have is that we did not replace the wood flooring – what we have is total garbage. It’s so bad there are times when I think I should tour the country talking about how bad it is so that others are fooled (like STEVE, the previous homeowner who put it in) into thinking these paper-thin veneer click and stick flooring system are worth considering.
Preparing the documentation for construction jump to 34:06
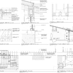
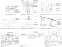
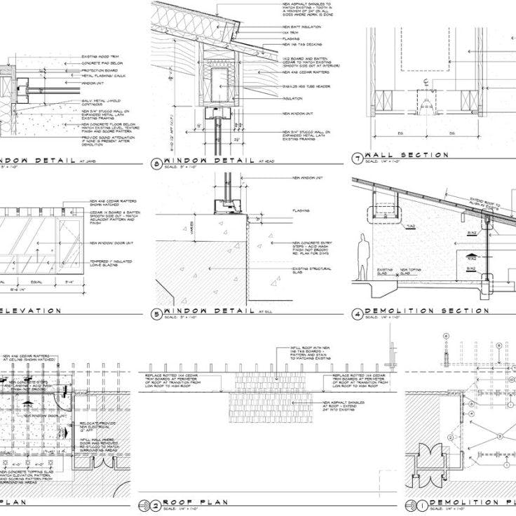
The process of preparing construction drawings was draining my life force – why is that? I’m more than capable of preparing drawings like this and I generally speaking like doing it … but for some reason, having to work on drawings for yourself is terrible (despite how well I get on with the client). Someone suggested that part of the reason it’s so bad is because this is what I do for a living, and in this regard, I’m not getting paid for my time. I’m not sure that I can agree with that because the flip side is that I’m also not having to pay someone with my skill level to do it for me. I think the reason preparing drawings for your own home is a drag is that the only time I would have would be in the evenings and weekends and quite frankly, I’m too mentally drained by the time my schedule affords me. Maybe if I didn’t write blog posts or record podcasts I would feel differently.
I did, however, build a functioning 3D model of my house in SketchUp so that I could have some reasonable design conversations with my wife. I would be curious to know whether or not other architects have 3D models of their house – this would actually be the second house I’ve owned and modeled (…what Architects do for Fun) and other than simply being an interesting exercise, I have actually used this model to have job site meetings with my trim carpenter to illustrate how I want certain conditions handled. I imagine that I will write a post dedicated to the trim (how exciting!!) and I’ll demonstrate how this 3D model came in handy.
We are taking on yet another one of Andrew’s hypothetical questions. jump to 47:43
"If you could have a single button beside your bed that did one thing, and you could only push it once a day, what would you want it to do? While this button has magical properties, it doesn’t work miracles – meaning it doesn’t make money fall from the sky, change your body (as in lose weight, smaller feet, etc.), make someone love you, etc. It can perform a chore -the same chore – and that’s it."
I thought this one was going to be boring but it turned out to be a lot more interesting than anticipated. Do I think my answer was correct and superior to Andrew’s? You’ll just have to listen for yourself to find out the answer to that question.
Renovating your house is almost always more difficult than people imagine – but that’s not to say it’s hard or not worth the challenges that come along with the experience. How successful this experience will be is dependent on just a few very simple steps:
• Determine an appropriate budget
• Come up with a list of items you want to address
• Set up a schedule of priorities
• Be prepared to eliminate items from your list
• Marry your expectations against the product you are paying for
• Communication is key
There you go – 6 simple steps that are surprisingly harder to execute than most people realize. Those 6 items are in order of execution but they are not in order based on their complexity or their importance. The most important items on that list are 1, 5, and 6 and my advice would be to collaborate with an architect or contractor to deal with #1 and #5, and where #6 is involved, having a conversation with you contractor about how communication will be handled moving forward – and in some cases getting those expectations in writing as well as tied to paying invoices is probably a good idea.
Living in your house while it’s being renovations is madness and should not be done unless you know this and realize that you are the one who is crazy.
Cheers,






