Exploring Show Village 2014
After 15 years, Professional Builder’s Show Village is not slowing down. Some of the newest trends and innovations in residential design and construction will be on display in the annual showhome exhibit at the International Builders’ Show in Las Vegas, Feb. 4-6, 2014.
The Las Vegas Convention Center’s main parking lot will be the site of Show Village, which will feature a modern, upside-down home, a cutting-edge traditional home, and an inventive living kitchen.
Professional Builder partnered with California-based Cutting Edge Building Group for both houses, Texas-based Palm Harbor Homes for the kitchen, and dozens of product manufacturers.
The houses take modular construction to a new level by utilizing modules and SmartPanels to create economical solutions that offer the aesthetics buyers desire in a high-end home.
“It’s a modular core system. You have highly finished spaces where there’s a lot of cost density in the unit that we do in the factory,” says Isaac Lassiter, CEO of Cutting Edge. “Where there’s a lot of air space, we build on site. We use panelized components to create the 3-D spaces that close in the air.”
This approach reduces shipping costs by decreasing the number of trucks needed for delivery. It also keeps people from simply paying for air by allowing the panelized components to be stacked along with the modules and then creating wide-open living spaces with high ceilings on site.
The designs for the homes and the kitchen all emphasize energy efficiency as well as indoor/outdoor relationships with the use of expansive windows and outdoor living spaces.
Country House
Inspired by its final location in the foothills of the Cascade Mountains in Oregon, the Country House combines interior functionality for an older couple with grown children with exterior design befitting the setting’s beauty.
“The house really evolved out of the site in this case because it’s a specific site with a specific orientation,” says Ross Farland, project architect with Dezine Works. “This is my personal property, a 41-acre heavily wooded site.”
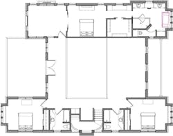
Country House lower level
The house includes a master wing complete with a large sitting room and ample closets in addition to two guest suites, designed to be comfortable spaces for the architect’s daughters to enjoy whenever they come home to visit or stay. A multilevel great room and spacious kitchen make the house ideal for entertaining.
“A big driver of this house was that it could be large and open enough that my wife and I have the owner wing that we can always go to, but still have plenty of flexibility so we can have many guests,” Farland says.
Country House upper level
Although not compliant with all standards in the Americans with Disabilities Act (ADA) , the house takes into account some aging-in-place concerns. An elevator helps alleviate potential issues with an upstairs master suite, while 3-foot doors throughout the home make most areas wheelchair accessible.
An energy-recovery ventilator system (paired with other new technologies) , solar panels, and hydroelectric power from an adjacent waterfall combine to make this a net-zero energy home.
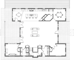
Ultimate Kitchen
This year’s kitchen is not just about cooking and eating spaces. It also incorporates a laundry room and sitting area for a more cohesive concept: a living kitchen.
“The trend in the last few years has been toward more open spaces and away from formal living rooms, dining rooms, etc.,” says Wendy Johnson, project designer with Designs for Living. “The kitchen has really become a part of one big living space, and that’s why I call it the living kitchen.”
The living kitchen works with many different styles, but Johnson says she chose modern, cleaner lines for a more peaceful and less stressful environment.
The focal point of the entire kitchen, according to Johnson, is the galley sink that is a combination of sink, countertop, and food prep. Next to the galley sink is an induction cooktop for low-energy and high-efficiency cooking.
Mixed materials are prominent throughout the space and include a glass breakfast bar and terrazzo concrete countertops.
The design addresses aging-in-place concerns with spice racks and a television that appear with the push of a button. The living kitchen also features plenty of natural daylight as well as artificial light.
“The spaces we live in should be light and bright and designed for all generations to use,” Johnson says. “It’s not always about wheelchair accessibility but instead features that could be adapted for aging in place.”
Fire Island Home
Everything about the very modern Fire Island house can be described as upside down. The first floor features three bedrooms and two baths while the upper level is home to the kitchen and living space along with a master suite.
The original intended site, on Fire Island in New York, was oriented toward ocean views while the new final destination is on a scenic private lagoon near shallow Richardson Bay close to the north end of the San Francisco peninsula.
“The idea is that this is going to be pretty much a glass box that is elevated and has adjacent outdoor spaces,” says Chris Krager, project architect with KRDB. “The notion of the lifestyle that probably would take place in a home like this is one that would be about taking in the views and vistas and also really connecting to the outdoors.”
Fire Island Home lower level
A large deck on the upper level enhances that connection and is accessible from both the living space and the master suite.
The house is also built for entertaining, indoors and out. The kitchen, dining, and living rooms all come together in one large, 20-by-48-foot entertaining hub. This large space is made possible by combining traditional modular construction with panels.
“It’s not a terribly large house, so having the open kitchen, dining, and living plan makes the space feel more generous as opposed to breaking it up into smaller spaces,” Krager says.
Fire Island Home upper level
The large number and size of windows throughout the house play an important role in the home’s energy efficiency. Triple coated low-E glass is used in all of the windows to reduce thermal heat gain. And the home’s 2-by-6-inch exterior wall construction helps, as well, allowing more room for more insulation.








