The New American Home 2026: Going Out With a Bang
This article initially appeared in the January/February 2026 issue of Pro Builder
For its last foray in Central Florida, the 2026 New American Home breathed new life into the 43-year-old show home program before the International Builders’ Show moves permanently to Las Vegas.
Located on a dramatic hillside lot in Winter Park, Fla., the modern six-bedroom, eight-bathroom home offers 7,414 square feet of livable space across three levels, including a full back kitchen with private access from a carport for caterers, dramatic lake views, and universal design principles.
Outdoor spaces extend the open concept kitchen and living room areas and cascade down the hill to the water, while a catwalk on the upper floor connects the family living quarters to a guest suite above the three-car, at-grade garage, complete with a full kitchen, bathroom, and seating area. Below-grade, an 18-car showcase garage accessed by elevator also includes a wellness and exercise suite, wine cellar, theater, and game room.
“Everything that was selected [for this home] was very well thought-out: how is this going to wear? How is this going to look? How are these things interacting with each other?” says Daniel Kennerly, partner and owner at Alair Homes-Orlando, the builder. “There was nothing that wasn't thought through and discussed."
Props to the “Pops”
That’s because, unlike most New American Homes built on speculation,the 2026 version has a homeowner attached: entrepreneur and philanthropist Jason Eichenholz.
So, when developing the home’s design and features, architect Michael Wenrich, principal at Orlando, Fla.-based architecture firm Michael Wenrich Architects collaborated with Eichenholz to deliver on three main areas—or “pops,” as the owner puts it.
First, the home needed to appear quiet and understated from the street, then surprise visitors as they entered the front door.The second “pop” comes immediately upon opening the front door: an immediate line of sight to the outdoor spaces through large sliding glass doors, leading into the third “pop,” a vanishing-edge pool that blends almost seamlessly into the horizon line of the lake beyond, creating a unique focal point for the outdoor seating and dining areas.
“That narrative, or that sequence of events, served as the backbone of the project and all of our conversations about the home during planning,” Wenrich says. “And now that it's done, it really does exactly what Jason wanted it to do.”
Creating Intimate Moments
Despite its scale, the home manages to feel warm and inviting. Creating that sense of intimacy was important for the design team, says Olivia Maher, senior designer at interior design firm Steele Street Studios in Orlando, Fla.
“The homeowner sought a home that felt moody and masculine but not cold,” she says. By pairing warm wood elements with glass and concrete and injecting warmth into the home furnishings, they were able to make the juxtaposing ideas work together.
“We were very conscious of creating more intimate spaces in a house of this size and scale,” Maher says. “It’s not just one big space. They feel different and compartmentalized, but yet so open to each other.”
A Feat For Florida
No build is complete without challenges, and this year’s home was no exception. Arguably the biggest hurdle was the basement. The scale alone—including its numerous rooms, parking areas, and car elevator—was challenging enough, but building a below-grade space in Florida’s sandy soil and high water tables underground was even bigger.
But the site’s topography and the team’s can-do attitude overcame the roadblocks.
“It’s basically an 18- to 20-foot hill from the road down to the lake, and that means our basement is above the water table rather than in it or below it,” says Wenrich. That site condition alleviated some of the risk, but creating a basement for a car collection with an elevator and a turntable presented its own. “This was our first rodeo as the architect,” he admits.
Resiliency posed another challenge. According to Wenrich, it was crucial to have materials that suited humid Florida conditions and also were rated to better withstand hurricane winds and rain.
By specifying impact-rated glass, stucco cladding, and thermally treated wood, among other measures, will keep the home safer from the elements while also elevating its design.
“You can’t have big walls of glass without pretty ambitious engineering,” says Wenrich. “In other regions, we might be working within cast concrete or wood, whereas here we were able to do a lot with steel and really open up those windows.”
A Home That Gives Back
Homeowner Jason Eichenholz is an entrepreneur, philanthropist, and the founder of Jonathan’s Landing, an Orlando-based organization that seeks to create an intentional space for adults with autism.
Inspired by his son, Jonathan, a young adult with autism, Eichenholz is matching the cost of all contributions from manufacturers that supplied products and systems to The New American Home 2026 dollar-for-dollar to support his charitable organization.
With that mission in mind, many elements of the home were designed with Jonathan at the forefront. Universal design principles appear throughout, including widened doorways, pocket doors that prevent exits from being blocked, low- and zero-threshold transitions, and even an elevator connecting all levels of the home.
The back kitchen—designed to function as a dedicated catering kitchen for entertaining and fundraising events—also doubles as a separate kitchen space for the homeowner’s son, who runs an online cooking program called “Meals With Jonathan.”
Project Details
Location: Winter Park, Fla.
Home Size: 7,889 livable square feet / 16,612 square feet total
Lot size: 31,000 square feet
Bedrooms: 6
Bathrooms: 6 full / 2 half
Builder: Alair Homes, Orlando, Fla.
Architect: Michael Wenrich Architects, Orlando, Fla.
Interiors: Steele Street Studios, Orlando, Fla.
Landscape Architect: Mills Design Group, Oviedo, Fla.
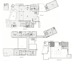
Floor Plan
The New American Home 2026 spans 7,889 of livable square feet across three floors, including an 18-car basement garage and wellness suite, library, a connected studio space, and numerous outdoor living spaces.
A The great room features double-height ceilings with large expanses of glass that look out over an infinity edge pool.
B The kitchen features connects with a full bar as well as a back kitchen that serves as prep space for catered events.
C The primary suite features a full bath, ample closet space, and a terrace overlooking the home’s lakeside views.
D Complete with a bedroom, bathroom, kitchen, and living room, the home’s studio space provides a comfortable space for visiting friends and family members.
E The basement garage features spaces for up to 18 vehicles as well as a movie theater, game room, and wellness suite.
Project Partners
Platinum Sponsors
LG Electronics
LG Air Conditioning Technologies
SKS
Gold Sponsors
Kohler
Schneider Electric
Silver Sponsors
Lutron
Cosentino
Rinnai
Progressive Foam
VintageView
Clopay
Digs
DSA Doors
Euro-Wall
Kichler
FI-FOIL
Viewrail
Thermory USA
Bedrock Wireless
OmegaFlex
DaVinci Custom Fireplaces
NAHB Leading Suppliers Council Contributors
Amrize
Broan-Nutone
Emtek Products Group / Fortune Brands Innovations
Garaventa Lift
Generac
Gladiator GarageWorks/Whirlpool
LiftMaster
Sherwin-Williams
Viewrail
Participants
Axiom Fine Art / Aeroseal / Aquor / AutoHot / Bang & Olfsen / BlumSafe / Carousel USA / Composit Cucine / Concrete Foundations Association / Contractor Source / Crossville Studios / D&D Garage Doors / Daisy / Digs / Environmental Water Systems / Euclid Chemical / Fontana Forni USA / FreePower / Helix Steel / Home Depot / HomeTeam Pest Defense / Innovation Cabinetry / J. Gibson Mcllvain / JinkoSolar / Josh.ai / Lawson Concrete Studios / LG Floor Care Inc. / Origin Acoustics / Orlando Steel Framing / Pentair / Sauder / Scena / Schluter / Slim Design Solutions / Solar Stack / Sugatsune / Travis Industries / Tremco / TrueFlame / VintageView / Visual Comfort
About the Author

Catherine Sweeney, Content Strategist/Staff Writer
Catherine Sweeney is a content strategist and staff writer for Pro Builder and Custom Builder Online, with a focus on design trends, new products, and environmental issues. Contact her at [email protected].










