4 New Live/Work Housing Design Solutions
The concept of living above your store is actually an old idea found in most small towns around the nation. Over the last few years, we’ve witnessed a reemergence of buildings with residential living above office and retail space, and during the current pandemic, the ability to run a business or work from home has taken on even more significance as people have struggled to discover a secluded nook or cranny at home where they can find a moment of privacy to join a video conference.
Although nobody really knows the long-term effects, there seems to be little doubt that work patterns will change for many of us. The slow-paced development of live/work projects is likely to accelerate now that the concept has been tried and proven to be successful for many workers.
The following plans present thoughtful solutions to the challenges of designing and developing live/work projects.
RELATED
- Homeowners Are Looking for Homes That Do More
- Easier Living by Design? Builders Are Exploring New Approaches
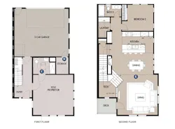
Live Work SFD
ARCHITECT: Kevin L. Crook Architect, Kevin Crook, [email protected], 949.660.1587
DIMENSIONS: Width: 24 feet, Depth: 37 feet, Living area: 1,998 sf
This detached live/work infill project (shown, above) is located within a traditionally commercial neighborhood. Each three-story detached home has approximately 250 square feet of work space at the ground floor, a flexible area that can either serve the owner as a home-based business or be leased out to a business tenant and locked off from the residence.
Each home is about 1,998 square feet, with primary living space on the second floor. The dining area opens out to a generously sized private deck. The third floor is composed of bedrooms, baths, and a laundry.
Each unit also has a two-car garage as well as an adjacent uncovered parking space and additional guest parking on the street.
Contemporary-style elevations feature a combination of stucco and siding to create a street scene that adds variety and value to the neighborhood.
A Work space on ground level
B Private powder room
C Work space private entry
D Shared entry to living area, work space, and garage
E First-floor living space features common areas
F Second-floor living space is dedicated to bedrooms/private areas
SITE PLAN
G Common drive
H Common open space
I Private yard area
J Work space
K Two-car garage
L Guest parking
Clair
ARCHITECT: Todd Hallett, AIA, TK Design & Associates, [email protected], 248.446.1960
DIMENSIONS: Width: 18 feet, 2 inches, Depth: 42 feet, Living area: 750 sf (office) plus 407 sf (roof terrace); 1,780 total sf
Running a business out of the home has become increasingly popular for working professionals and entrepreneurs. And, with advancing technology and the ability to telecommute, this option has become even easier.
This live/work unit makes it possible to keep work and everyday living separate, as the entry level has a designated area devoted entirely to business space, with a convenient, accessible entry for clients.
A Office at the front of the lower level with separate entrance for clients
B Private powder room for office
C Open entertainment space on second floor
D Third level contains private spaces, including laundry
E Spacious rooftop terrace provides additional space for entertaining
Homeplace Townhome
DESIGNER: Seth Hart, DTJ Design, [email protected], 303.443.7333
DIMENSIONS: Width: 20 feet, Depth: 52 feet, Living area: 2,090 sf
Live/work has taken on an entirely new meaning in the last few months. As many of us have been forced to work from home, we find ourselves reevaluating the home office. With laptops and tablets allowing more mobility and flexibility, large dedicated office space is less of a priority than it once was.
This townhome plan utilizes two small offices with pocket doors, which enable the spaces to live larger when the doors are open and provide quiet when privacy is needed.
The slightly larger office has additional space for a printer, coffee maker, and extra storage, while the smaller office is more of a flex space that can accommodate working from home part-time or doing schoolwork.
Solid-core doors and sound-deadening insulation in the 6-inch-thick walls make for perfect Zoom conference rooms.
A Zoom room/flex office with additional soundproofing and solid-core door for privacy
B Slightly larger pocket office ideal for working from home
C Glass pocket doors help offices live larger when open or closed and do not take up space when open
D Transom windows over doors provide natural light and visual connectivity
E High window between rooms brings natural light into the pocket office that is not on an exterior wall
Plan 3
ARCHITECT: Dahlin Group Architecture | Planning, [email protected], 925.251.7203
DIMENSIONS: Width: 26 feet, Depth: 46 feet, Living area: 1,734 sf
These three-story townhouses offer a live/work option targeting sole proprietors as well as those looking for a dedicated work-from-home space. They are part of a master planned community located on the brownfield redevelopment site of the former Fort Ord military base on California’s Monterey Peninsula.
The ground-floor work space faces the street like a storefront, welcoming customers and clients with full-length glass. It’s a stark contrast to the living space entrance, which is set back to be less obvious and more private.
A Street-facing work space provides visibility to vehicle and pedestrian traffic
B Separate entry to the living area is set back and has contrasting finishes
C Work space with private bathroom
D Dedicated storage for work space, with access to rear-loaded garage
E Main living located on second floor in an open-concept layout
F Third floor features the master suite, maximizing privacy from both the main living and work spaces
Access a PDF of this article in Pro Builder's July/August 2020 digital edition










