Duplexes Are Back
This article first appeared in the September/October 2024 issue of Pro Builder.
Duplexes provide a viable, low-density housing option. Arranged side by side, front to rear, or as stacked flats, duplexes were historically built alongside single-family homes—until restrictive zoning ordinances limited their role in those neighborhoods and, as a result, their share among housing types.
More recently, a growing number of cities and towns are changing such codes to again allow duplexes to be built in single-family neighborhoods. The goal is to more prominently address the need for “Missing Middle” housing (a term coined by architect Daniel Parolek). And duplexes provide higher densities and more attainable pricing while still being compatible with adjacent single-dwelling units.
To showcase what duplexes can do, our design team created street-facing elevations that would enhance most single-family neighborhoods, while interior motor courts and rear-entry garages help solve parking challenges.
RELATED
- From Infill Lot to Urban Oasis: Home Design That Maximizes a Compact Site
- Home Designs for Small-Lot Privacy
- On-the-Boards Designs for Today's Homebuyer
- Missing Middle Designs
Tandem Duplex Four Pack
ARCHITECT: Dawn Michele Evans, AIA, NCARB, The Evans Group, [email protected], 407.650.8770
DIMENSIONS: Width: 33 feet Depth: 110 feet Living area: 2,303 sf
Tandem duplexes are an increasingly popular solution to escalating lot costs, and jurisdictions are becoming more accepting of this configuration within single-family infill neighborhoods.
The initial concern expressed by our developer/builder clients was that either the front or the back unit would sell, but not both equally. Yet, in every case where we have designed tandem duplexes, we’ve found that the units have sold equally well at the same price.
These three-bedroom homes live like single detached units because the only shared wall is between the garages, eliminating sound transfer between the homes.
The first floor lives large. It features an open floor plan with the kitchen conveniently located adjacent to the garage. A full bath on the first floor allows a flex space to be used as an office/den or a bedroom.
Upstairs, all bedrooms are designed to accommodate a king-size bed, while a loft niche provides space for gaming or studying separate from the main living areas.
A The wall between the garages is the only shared wall between the units
B Concealed AC compressor and trash bin storage
C Generous private outdoor living space
D Flex space on main floor for office or guest bedroom
E No living space above garages eliminates noise transfer between units
F Flexible-use loft space
The Turnberry
ARCHITECT: Scott Gardner, Scott Gardner Architect, [email protected], 919.320.3022
DIMENSIONS: Width: 26 feet / Depth: 52 feet / Living area: 2,303 sf
This three-story duplex is designed for a desirable infill location where land is at a premium.
Rear-loaded garages deliver optimal street frontage and allow for a porch-forward design with outdoor living spaces on all three levels to take advantage of views.
An elevator and first-floor flex space enable the owners to age in place or host an elderly family member or overnight guests.
Generous closets and an oversized garage provide ample storage—all in a tight but comfortable, light-filled footprint.
A Front porch enters to an office/bedroom
B Owner’s entry from garage with direct access to the elevator
C Oversized two-car garage provides storage or hobby space
D Outdoor living on second level
E Elevator and stair both land at the kitchen for easy transfer of groceries
F Two walk-in closets serve the primary suite
G Outdoor living on third level
H Flex-use bonus room with a full bath
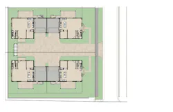
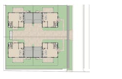
Duplex Cluster
DESIGNER: Seth Hart, DTJ Design, [email protected], 303.443.7533
DIMENSIONS: Width: 70 feet / Depth: 120 feet / Living area: 1,530 – 1,650 sf
These paired duplexes are mirrored to elegantly frame a central motor court.
Designed with privacy in mind, the rear units feature front doors accessed from shared walkways, enhancing the entry experience while minimizing street-level density.
Each unit boasts private outdoor living spaces, two bedrooms, and an oversized two-car garage that caters to an active-adult lifestyle.
The layout thoughtfully positions the common wall between duplexes along the garage and secondary bedroom and bath, ensuring optimal privacy between units.
This design not only fosters a sense of community but also respects individual space, offering a harmonious blend of convenience and tranquility.
A Rear-unit front doors along a shared walkway enhance both privacy and the entry experience
B Private outdoor space for each unit
C Oversized two-car garage for each unit provides extra storage or hobby space
D Common wall located between garages and secondary bedrooms maximizes privacy between units
About the Author
Larry W. Garnett, FAIBD, House Review Lead Designer
Larry Garnett, FAIBD, is the lead designer for Pro Builder's House Review feature. A residential designer since 1977, Garnett has designed several national show homes, including "The Most Romantic Home in America" by Traditional Home Magazine. His book, Home Plan Doctor, was published in 2008.









