A Look at Housing's Future: It Takes a (Show) Village
However you make your way to the Las Vegas Convention Center for the 2023 International Builders’ Show (IBS) in late January, you’d be hard-pressed to miss the annual Pro Builder Show Village.
Located in the parking lot just across from the LVCC’s Central Hall entrance, among other outdoor exhibits created for IBS, Show Village 2023 lives up to its name by showcasing a cul-de-sac of five homes that offer real-world solutions to the housing industry’s labor, supply, and affordability issues.
Each full-scale home is open for self-guided tours during IBS, with a selection of takeaway literature for future reference and experts on hand to answer questions. “It’s not only the most homes we’ve ever had at Show Village, but the most innovative,” says Tony Mancini, group director and principal of SGC Horizon, publisher of Pro Builder Media. “We want builders to have firsthand experience of commercially available housing innovations that will help address some of the industry’s most critical challenges.”
RELATED
- What’s Happening on the IBS 2023 Show Floor?
- Your Road Map to Off-Site Construction and Modular Homes
- Marketing Industrialized Construction to Consumers
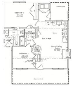
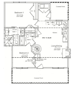
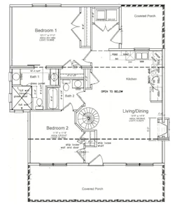
Compact Cottage
PROJECT SPECS
Model: The Cottage / Size: 1,306 sf / Beds/baths: 2/2 / Builder: Impresa Modular, Martinsburg, W. Va.
Designed as a lakefront retreat, The Cottage model from Impresa Modular makes a strong case for the ability of modular homes to meet modern demands for marketable design, livability, and affordability.
The 1,306-square-foot home offers front and rear porches, vaulted ceilings, and an upstairs loft or flex space (see floor plan, below). “We’re breaking down the preconceived notion among builders, developers, and homebuyers that modular construction creates design limitations,” says Ken Semler, company president and founder. “In fact, beautiful, well-designed homes are possible with this advanced method of construction.”
The company encompasses a trio of related businesses: one that partners with 20 modular home factories across the country to provide custom homes on scattered lots; a dedicated factory in South Carolina (the first of several such facilities planned nationwide) for the company’s own sales efforts within that plant’s distribution radius; and a franchising arm offering builders and developers Impresa’s infrastructure and industry expertise.
“We’re breaking down the preconceived notion among builders, developers, and homebuyers that modular construction creates design limitations.”
—Ken Semler, Impresa Modular
“These partnerships mean our builder customers can quickly establish themselves in the off-site modular industry with reduced risk,” says Semler, who wants to scale Impresa’s custom modular home building business through its franchise network.
In 2023, the company will present an optimized set of home plans with a simplified batch of curated options for homebuyers. “We’re also accelerating the recruitment of real estate agents nationwide and will introduce a Buy Now button on our website that will streamline the homebuying process,” he says.
In addition to the company’s ambitions, Semler also looks forward to a sea change in the housing industry overall. “For off-site modular construction to grow and succeed requires a flurry of builders and developers to begin adopting it now as their primary method of home delivery,” he says.
RELATED
- Ken Semler on Franchising's Role in Helping Modular Building Grow
- The Great Convergence, Part 1: Why the Move to Off-Site Construction Now?
The Future Unfolds
PROJECT SPECS
Model: Casita and Two-Story Prototype / Size: Casita: 361 sf; Prototype: 1083 sf / Beds/baths: Casita: 1/1; Prototype: 2/2.5 / Builder: Boxabl, Las Vegas
The fact that a Boxabl home literally unfolds from a slim, compact profile into a near-complete, well-appointed tiny home in about an hour should be a compelling enough reason to see it live at Show Village.
For 2023, the Las Vegas-based company brings a more ambitious iteration: a two-story unit based on the same footprint as a companion Casita (see floor plan, below).
“Boxabl is a new postindustrial building construction technology that enables factory mass production of homes,” says Boxabl CEO Paolo Tiramani, an industrial designer and mechanical engineer who founded the company in 2017 and started full-scale production in 2020. “As it scales, the technology significantly reduces delivery time to days instead of months, improves construction quality, and lowers prices.”
“As it scales, the technology significantly reduces delivery time to days instead of months.”
—Paolo Tiramani, Boxabl
All Boxabl building shells can stack, connect, and cantilever several stories and can be rendered in any architectural style, he says; with clear spans of up to 40 feet, ceiling heights up to 9 feet, 6 inches, and large windows and doors without headers, Boxabl is able to create “almost anything.”
Currently producing two homes per day (with ambitions to quadruple that output), the company’s next move is a 6-million-square-foot “R&D village” that Tiramani expects will eventually manufacture a home every 60 seconds, with international shipping to builders, developers, governments, and major corporations for their housing needs.
“Developers are currently forced to commission site-built homes because there are few real alternatives to meet the demand for housing,” he says. “Boxabl enables them to turn more projects much faster with fewer resource constraints, such as skilled labor and the legacy supply chain, at a lower risk.”
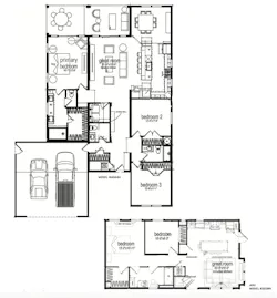
HUD-Code Harbinger
PROJECT SPECS
Model: Model #4064H and Accessory Dwelling Unit (ADU) model #2039H / Size: House: 1,873 sf; ADU: 788 sf / Beds/baths: House: 3/2.5; ADU: 2/1 / Builder: Genesis Homes by Champion Home Builders, Greenville, S.C.
A two-home set from Genesis Homes by Champion Home Builders demonstrates the increasing ability of HUD-code homes to deliver on-trend style and comfort at an affordable price and also showcases the segment’s ability to respond to increasing demand for accessory dwelling units (ADUs).
“As housing costs continue to increase, ADUs provide a more affordable housing option in neighborhood settings without dramatically changing the look and feel of the neighbor-hood,” says Wade Lyall, Champion Home Builders’ EVP of business development.
The main house—a three-bedroom, 2 1/2-bath single-level unit—looks and lives like a site-built home, featuring a distinctly modern style, an open floor plan for the kitchen, living, and dining areas, and generous outdoor living spaces (see floor plan, below). “By clustering the main living areas and bringing the outdoors in, the home lives larger than its 1,873 square feet would suggest,” Lyall says.
“Our ambitions are to make housing more affordable, readily available, and easily attainable.”
—Wade Lyall, Champion Home Builders
The right-sized ADU mimics the larger home’s aesthetic and finishes, and features a broad main entry porch and a side entry; inside, the efficient two-bedroom plan includes a walk-in closet for the primary bedroom and stacked laundry equipment (see floor plan, below).
Champion’s 45 production facilities in North America enable it to partner with home builders, general contractors, and developers across the continent, while its capacity to deliver more than 25,000 units a year earns it national contracts with leading suppliers and attracts a loyal workforce—both of which factor into the affordability of its homes.
“Our ambitions are to make housing more affordable, readily available, and easily attainable,” Lyall says. “We’ll continue growing through innovative designs, incorporating smart technology into our homes, maximizing energy efficiency, and utilizing production automation to improve consistent quality and performance.”
Also at Show Village ...
Live How-To Demonstrations. ProTradeCraft will once again deliver live construction how-to demonstrations, but this time with a twist: hands-on skills testing and competitions each afternoon. The ProTradeCraft Skills Challenge (including an obstacle course of “standard” jobsite skills tests) will be judged and winners awarded on the spot!
Meetups and Block Parties. Enjoy a beverage on Pro Builder and unwind with friends and colleagues on Tuesday and Wednesday at two casual networking events each afternoon. On Tuesday, we’ve invited tomorrow’s young leaders for an Under 40 meetup, and we will honor women in construction at Wednesday’s event … though everyone is welcome on both days.
For more Information, go to pbshowvillage.com
About the Author

Rich Binsacca, Head of Content
Rich Binsacca is Head of Content of Pro Builder and Custom Builder media brands. He has reported and written about all aspects of the housing industry since 1987 and most recently was editor-in-chief of Pro Builder Media. [email protected]









