Multi-Gen Home Designs That Succeed in Meeting Multiple Needs
Although multiple generations living together in one home may seem like a fairly recent concept, it was considered the norm decades ago ... until a variety of housing types emerged to provide each generation an opportunity to seek independence.
In more recent times, the economics of independent living and increasing longevity have prompted many families to revisit the idea of sharing expenses and living spaces, as well as providing needed care both for young and old.
Still, the desire for independence and privacy remains critical, and successful designs, which include separate entrances and personal garages, among other features, emphasize those wants and needs while also offering communal gathering spaces inside and outside the home that enable valuable connections and emotional support for members of these expanded households.
RELATED
- Make Way for Multigenerational Housing: Home Designs for Combined Living
- House Review: Multigenerational Living
- Design Trends in Multigenerational Housing
6160 at Westerly
DESIGNER: Seth Hart, DTJ Design, [email protected], 303.443.7533
DIMENSIONS: Width: 50 feet / Depth: 80 feet / Living area: 4,087 sf
This multigenerational-inspired home (main image, above) provides ultimate flexibility to meet a variety of family needs.
For example, the entertainment-driven kitchen’s massive island and generous living and dining spaces accommodate connectivity, while a tucked-away office, a retreat in the primary bedroom, and a kids’ loft provide areas that enable privacy.
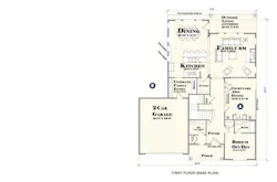
Meanwhile, the multi-gen suite on the main floor (shaded in blue on the first-floor plan, at right) offers direct access from a single-car garage, a separate entry door off the entry porch, and an interior connection to the main home for ultimate flexibility. The suite’s living room, kitchenette, and stacked washer and dryer allow the space to function independently of the main home for added privacy, while its own outdoor living porch can be expanded on end lots to a larger covered porch.
A. One-car garage with direct access to multi-gen suite
B. Entry door off a covered porch
C. Living room with kitchenette offers privacy and flexibility
D. Private outdoor living space can be expanded on end lots
E. Large kitchen and island to accommodate multigenerational families
F. Retreat off the second-floor primary bedroom provides additional private space
Custom Home
ARCHITECT: Donald F. Evans, AIA, The Evans Group, [email protected], 407.650.8770
DIMENSIONS: Width: 65 feet / Depth: 85 feet / Living area: 4,142 sf
This home is perfect for multi-generational living, providing a plan that works for a household of three (or more!) generations.
A generous private second-floor apartment, served by an elevator and stairs, is fully outfitted for independent living, including an open studio area for maximum flexibility.
The main home’s open floor plan features a dining room and a gourmet kitchen, both opening onto spacious outdoor living areas.
A split first-floor layout provides secondary bedrooms (each with a bathroom), a private home office, and a luxurious owner’s suite with two walk-in closets.
A. Grand rotunda entry glimpses outdoor living in back
B. L-shaped open floor plan
C. Owner’s suite set apart from secondary bedrooms
D. Secondary bedrooms with en suite or shared bathrooms
E. One-car garage to “friend’s foyer” and elevator
F. Centralized home office
G. Covered lanai accessible from living room and owner’s bedroom
H. Independent second-floor apartment
The Emerson
DESIGNERS: GMD Design Group, Scott Gardner, [email protected], 919.320.3022
Donnie McGrath, [email protected], 770.375.7351
DIMENSIONS: Width: 74 feet / Depth: 88 feet / Living area: 4,310 sf
This multigenerational home provides spaces for interaction among family members, including outdoor living spaces at the rear of the home.
A separate entry from the front porch creates privacy for the multi-gen suite, which is located far from the main home’s living areas and is protected by a staircase and closets to reduce noise transmission.
A. Split 2-1 garage provides a private bay for the multi-gen suite
B. Front porch with separate entries to the main house and multi-gen suite
C. Multi-gen suite kitchenette, living, and dining area
D. Secluded primary suite
E. Covered indoor/outdoor living
F. Loft provides natural light and a sense of arrival at the top of the stairs
G. Secondary bedroom with en suite bath
Plan 350
ARCHITECT: Todd Hallett, AIA, TK Design & Associates, [email protected], 248.446.1960
DIMENSIONS: Width: 50 feet / Depth: 62 feet / Living area: 3,281 sf
A great approach to easing overhead burden during a down market is to develop a lean portfolio that packs a punch.
The strategy is to create plans with built-in flexibility. Transformer plans like this allow one plan to serve several market segments, including multigenerational, and ease the burden of portfolio management.
A. An interior courtyard with a cozy fireplace can transform into a dining area or study
B. Negative space is purposely designed into the plan to allow for optional uses as needs change, such as ...
C. A tandem garage stall that fits nicely behind the two-car garage, or ...
D. An optional multigenerational suite that provides direct access to the outdoor space from its living area









